DISEÑO RESIDENCIAL
Espacios residenciales pensados para la vida: atención personalizada, precisión técnica y calidad en cada detalle.
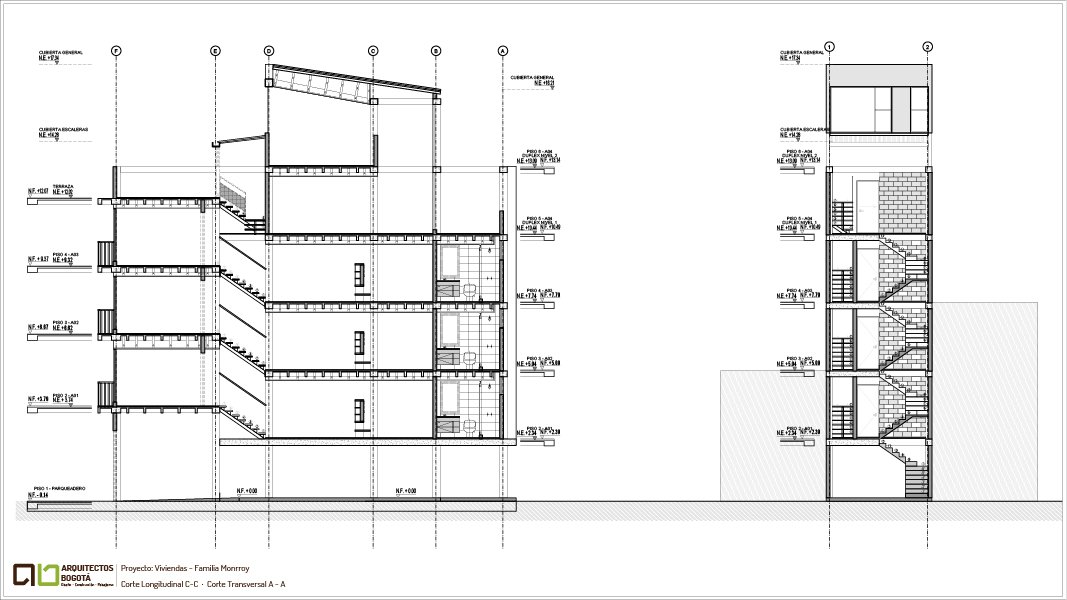
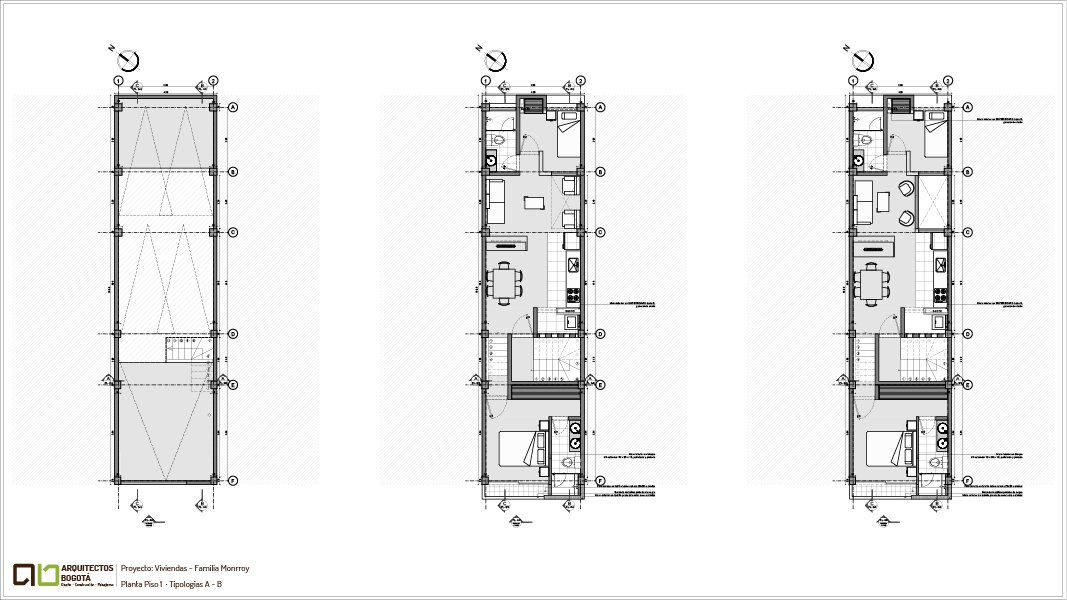
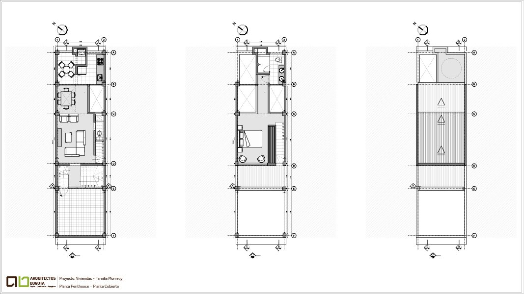
Edificio viviendas familia monrroy
Este edificio es el resultado de una renovación total que implicó la demolición de la vivienda original para dar paso a un nuevo proyecto arquitectónico multifamiliar, diseñado a la medida de una familia extensa. Cada nivel fue concebido como un apartamento completamente independiente, garantizando privacidad y autonomía para cada integrante.
- Ubicación: Bogotá
- Altura: 4 Pisos + 1 penthouse duplex
- Área: 303 m²
- Cliente: Luis Monrroy Urrego y Familia
- Diseño: Arq. Ivan D. Suarez
EDIFICIO LA CANDELARIA
Proyecto residencial contemporáneo ubicado en el corazón del sector histórico de La Candelaria. El diseño integra volúmenes limpios, puentes acristalados y materiales cálidos como ladrillo, piedra y estuco pigmentado, creando espacios habitables que combinan confort, iluminación natural y vegetación. Este conjunto busca revitalizar el tejido urbano mediante una propuesta respetuosa, funcional y estéticamente coherente con su contexto histórico.
- Ubicación: La Candelaria – Bogotá
- Altura: Varía de 3 a 5 pisos
- Área: 1.750 m²
- Diseño: Arq. Mg. Widmahan Pineda
- Arq. Jorge Vargas
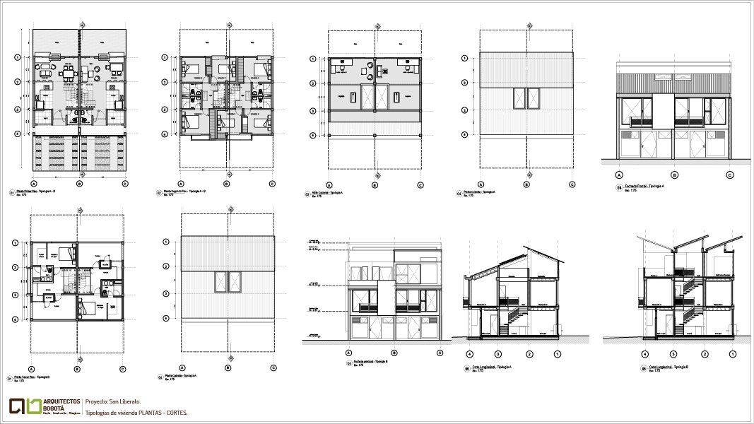
CONJUNTO RESIDENCIAL SAN LIBERATO
Es un exclusivo desarrollo residencial que combina la tranquilidad del campo con la comodidad de la vida moderna. Ubicado en un entorno natural privilegiado, este condominio campestre ofrece viviendas unifamiliares diseñadas para brindar confort, privacidad y calidad de vida.
- Ubicación: Cajicá
- Área: 6.727 m²
- Cliente: Constructora ABM
- Diseño: Arq. Ivan D. Suarez
- Colaboración: Arq. Alfonzo Mendez
CASA FAMILIA FORERO
Es una casa de vacaciones unifamiliar de estilo moderno y minimalista que combina elegancia, confort y sostenibilidad. Su diseño se abre a la vista del río Sumapaz, aprovecha la luz natural y la ventilación cruzada mediante patios interiores, muros calados y amplios ventanales que conectan los espacios con el entorno, ofreciendo una experiencia espacial cálida, luminosa y en equilibrio con el clima cálido.
- Ubicación: Melgar – Tolima
- Área: 290 m²
- Diseño: Arq. Mg. Widmahan Pineda
- Arqs. Mg. Mónica Cortés / Freddy Chacón
- Colaboración: Mauricio Herrán
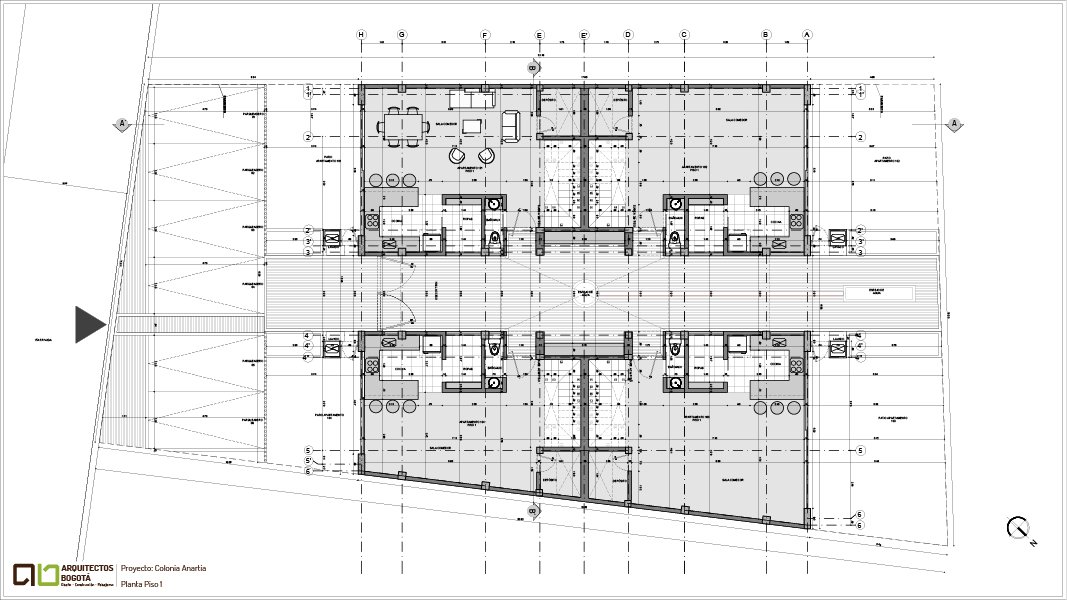
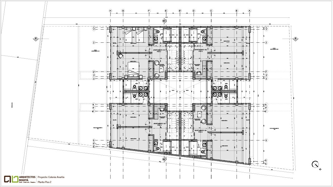
colonia Anártia
Colonia Anartía es una propuesta que fusiona la estética colonial de Villa de Leyva con un diseño contemporáneo funcional. Ofrece espacios amplios y luminosos, adaptables a distintas necesidades familiares o de inversión. Su distribución favorece la luz natural y ventilación cruzada, mientras que las fachadas equilibran tradición y modernidad con materiales nobles y soluciones eficientes.
- Ubicación: Villa de Leyva / Boyacá
- Área: 499 m²
- Diseño: Arq. Ivan D. Suarez
- Colaboración: Arq. Alfonzo Mendez


























